
Квадро-бани
Баня-квадро 6 м
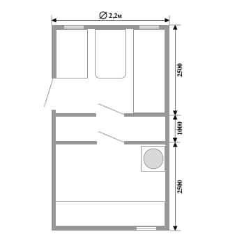
Материал: Кедр или Ель Обручи: Нержавеющая сталь Длина – 6 м. Толщина стенки – 45 мм. Ширина – 2,2 м. Высота – 2,2 м. Количество помещени…
Размер:
от296 400 ₽
Гарантия 12 мес
Монтаж за 2–4 ч
Без фундамента
Доставка по РФ
Характеристики
МатериалКедр или Ель
ОбручиНержавеющая сталь
Длина6 м.
Толщина стенки45 мм.
Ширина2,2 м.
Высота2,2 м.
Количество помещений3
Описание
Баня бочка, квадро, буханка, квадро хаус 5-6м
Общие характеристики
- Тип изделия: каркасная баня «Квадро»
- Габаритный размер: 5 000 × 2 300 мм
- Высота потолка: 2 300 мм
- Общая площадь: 11,5 м²
- Количество отделений: 3
- Тип кровли: мягкая
- Наружная отделка: кедр
Планировка помещений
- Скамья 2шт.
- Стол
- Светильник — 1 шт.
- Розетка 220V — 2 шт.
- Выключатель — 1 шт.
2. Помывочное отделение
- Проливной пол из кедра
- Организованный слив воды
- Влагостойкий светильник
- Вентиляция
3. Парное отделение
- Верхний полок — 2 100 × 700 мм
- Нижний полок — 2 100 × 500 мм
Конструкция
- Брус камерной сушки — 100 × 100 мм
- Сухая строганная доска — 50 × 100 мм
- Стены — минеральная вата 100 мм
- Пол — минеральная вата 100 мм
- Потолок — минеральная вата 100 мм
- Пароизоляционная мембрана
- Влагозащитная мембрана
Наружная отделка
- Кедровая доска
- Защитная обработка древесины
Внутренняя отделка
- Парная — вагонка из кедра
- Комната отдыха — деревянная вагонка
- Помывочная — влагостойкая отделка
Полы
- Проливной пол из лиственницы в парной и помывочной
- Толщина доски пола — 30 мм
- Организованный слив воды
Печь
- Дровяная печь KOSTER Rain 16 + сэндвич-дымоход Ferrum (D 115/200 мм) нержавейка
- Камни для печи — 100 кг
Окна
- Панорамное окно ПВХ — 1 500 × 1 900 мм
- Окно в парной — 300 × 300 мм
Двери
- Входная дверь деревянная — 800 × 2 000 мм
- Дверь в помывочную деревянная — 700 × 2 000 мм
- Стеклянная дверь в парную — 700 × 1 900 мм
Электрика
- Скрытая электропроводка
- Термостойкий кабель
- Светильники — 3 шт.
- Автоматы защиты
Кровля
- Мягкая кровля


